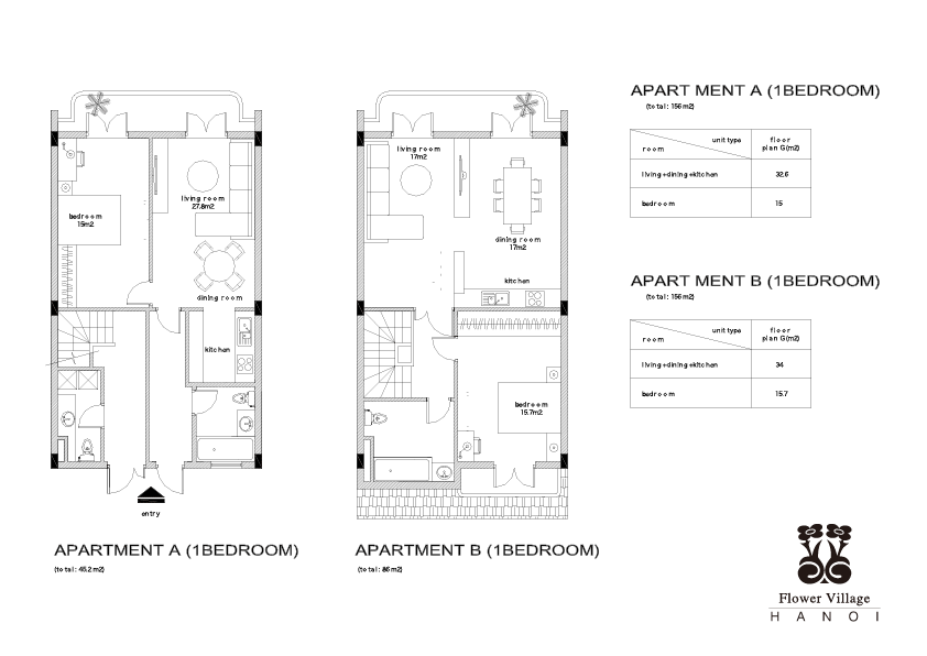
Nestled on the shores on West Lake, the peaceful 35,000m2 of Flower Village is a refreshing community in a lush green setting designed for today’s active executive families and diplomats.